Gründerzeitvilla mit Vierkanthof Innenstadt

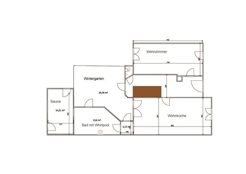
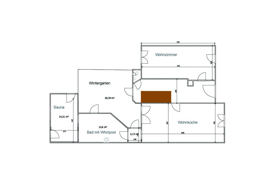
Erdgeschoss

moderne, zeitlose Wohnküche - gemütliches Wohnzimmer - Eingangsbereich mit eingelassener Garderobe



zurück

Grundriss Erdgeschoß
  • gemütliche Wohnküche